5582 HV, Waalre

Waalre – Eindhovenseweg 64a

€ 395.000,- k.k.

Bouwjaar
1935

Aantal kamers
3

Beschrijving

APPARTEMENT
In het centrum van Aalst-Waalre, gelegen instapklaar, zeer recent gemoderniseerd appartement gesitueerd op de 1e en 2e verdieping met gezellige woonkamer, keuken, 2 slaapkamers, badkamer en een heerlijke tuin op de begane grond.

Dit appartement in de vorm van een maisonnette van ca. 76 m2, is recent gerenoveerd en gemoderniseerd in 2023 boven een kapperszaak, centraal gelegen in Aalst-Waalre, tegenover Winkelcentrum Den Hof.

Gelegen op 1 minuut lopen van het centrum van Aalst en in de nabijheid van bossen, sportvelden en scholen. De wijk heeft een perfecte ligging in deze Brainportregio.
Via de nabijgelegen uitvalswegen bent u binnen een paar minuten bij grote bedrijven als ASML, NXP, de High Tech Campus, Maxima Medisch Centrum en het centrum van Eindhoven.

Kortom, wonen in het centrum Aalst- Waalre is lekker wonen, net buiten de stad! Wie wil dat nu niet!

De winkelruimte, die momenteel verhuurd is, kan optioneel ook gekocht worden. Koopprijs op aanvraag.
Er zijn geen foto’s geplaatst van de winkelruimte, wel van de bovenwoning.

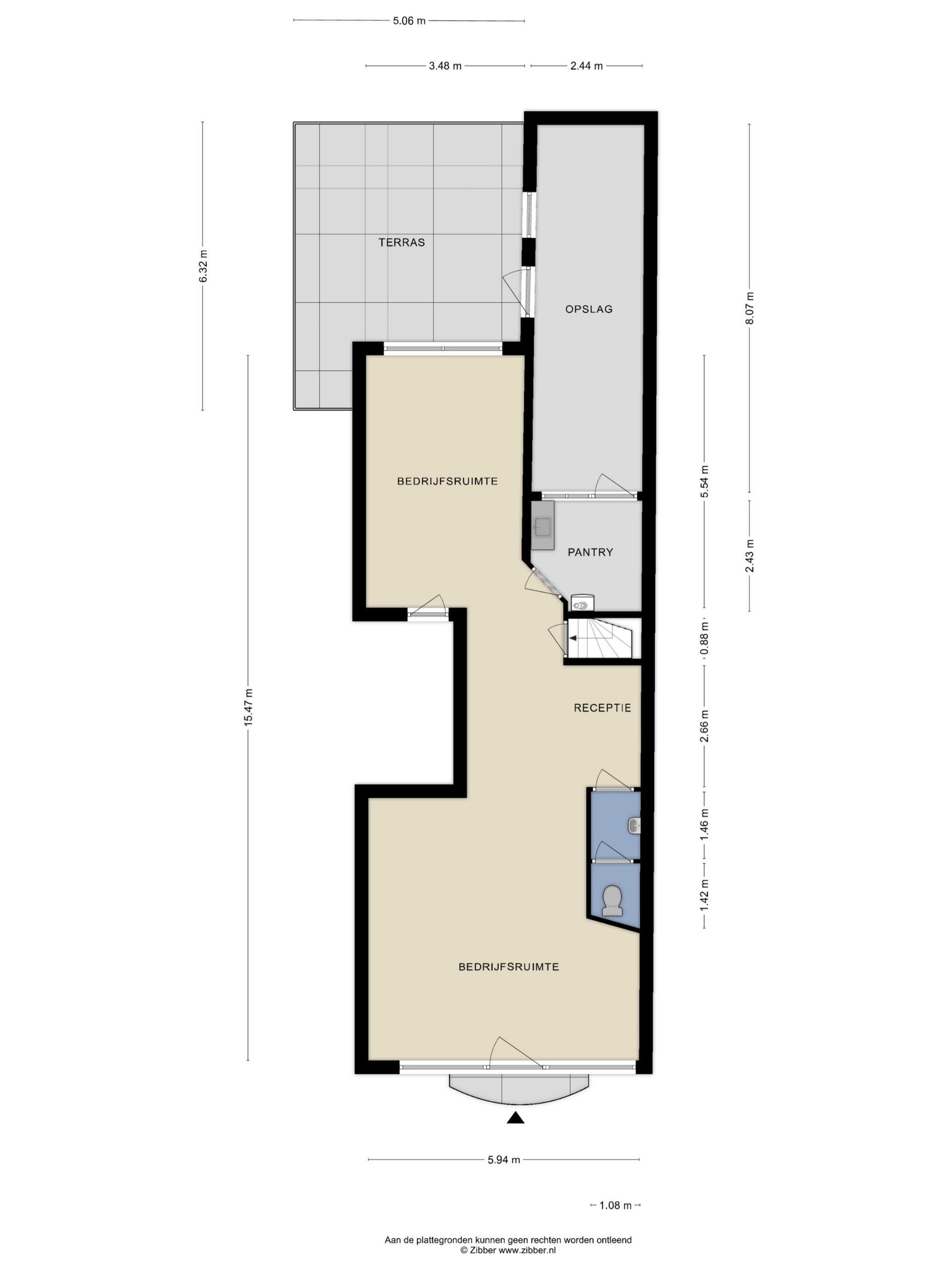
WINKELRUIMTE
De winkelruimte met bijbehorende buitenruimte is sinds mei 2003 verhuurd. De huursom van de winkelruimte bedraagt EUR 15.300,—, excl. BTW per jaar en de expiratiedatum is 04-05-2028. 

Afmeting:
– Verhuurbare vloeroppervlakte: 101 m2 bestaande uit bedrijfsruimte: 66 m2 en toilet- en facilitaire ruimte 34,65 m2
– Externe en gebouwgebonden buitenruimte 27,80 m2

VERKOOPPROCEDURE:
Voor informatie over deze woning kunt u contact opnemen met Coppelmans Makelaardij. Na mondelinge overeenstemming wordt er door partijen een koopovereenkomst getekend. In tegenstelling tot de situatie vóór 1 september 2003 is de koop van een woning (door een consument) pas gesloten als de koopovereenkomst door koper en verkoper is ondertekend. Tot die tijd is er geen rechtsgeldige koop. Dit is door meerdere gerechtshoven bevestigd; indien een koopovereenkomst ten aanzien van een woning niet schriftelijk wordt vastgelegd conform artikel 7:2 BW, is de sanctie nietig.
Tot zekerheid voor de nakoming van de verplichtingen van koper zal de koper een bankgarantie of waarborgsom storten in handen van de notaris (deze bedraagt 10% van de koopsom).

MEETINSTRUCTIE:
De woning is zorgvuldig professioneel ingemeten. De Meetinstructie is gebaseerd op de NEN2580. De Meetinstructie is bedoeld om een meer eenduidige manier van meten toe te passen voor het geven van een indicatie van de gebruiksoppervlakte. De Meetinstructie sluit verschillen in meetuitkomsten niet volledig uit, door bijvoorbeeld interpretatieverschillen, afrondingen of beperkingen bij het uitvoeren van de meting.

AANSPRAKELIJKHEID:
De verstrekte gegevens in deze brochure zijn met zorg samengesteld. Voor de juistheid van de informatie zijn wij in belangrijke mate afhankelijk van derden en aanvaarden wij, noch de verkoper, enige aansprakelijkheid. De opgegeven maten zijn circa-maten. De verstrekte informatie is van algemene aard, geheel vrijblijvend en is slechts een uitnodiging om in onderhandeling te treden.

Kenmerken

Koopprijs
€ 395.000,- k.k.
Status
Beschikbaar
Aanvaarding
Direct

Bouw

Bouwjaar
1935
Bouwvorm
Bestaande bouw
Soort
Maisonnette
Dak type
Schilddak
Soorten
Geen garage

Oppervlakten

Woonoppervlakte
76 m2
Tuin oppervlakte
36 m2

Indeling

Aantal kamers
3
Aantal slaapkamers
2
Aantal badkamers
1

Energie

Energieklasse
F

Plattegronden

Contact

Geïnteresseerd in deze woning?

Coppelmans Makelaardij

Elzentlaan 27

5611 LG Eindhoven

Contact Neem contact op