5581 XC, Waalre

Waalre – Agterste meer 3

€ 889.000,- k.k.

Bouwjaar
2019

Perceeloppervlakte
303 m2

Aantal kamers
6

Beschrijving

*FOR ENGLISH SEE BELOW*

Agterste meer 3: Royaal, stijlvol, instap klaar en duurzaam wonen in Waalre !

In de prachtige, groene wijk Hoogh Waalre staat deze half vrijstaande woning. Hier woon je in een sfeervol, instap klaar huis dat warmte, comfort en ruimte combineert met een fijne, onderhoudsvriendelijke tuin, een veranda waar je het hele jaar door kunt genieten en een rustige ligging met uitzicht op het Gat van Waalre en op loopafstand van natuur en voorzieningen.
Dit is een huis waar je niet alleen in woont, maar waar je écht kunt thuiskomen.

TOPLOCATIE IN WAALRE:
De ligging is fantastisch met het bos en het Gat van Waalre (waterplas de Meeris) tegenover je. Daarnaast bent u snel in Eindhoven en zijn de voorzieningen van Waalre-Dorp en Aalst binnen handbereik. High tech bedrijven als ASML en HTC zijn, net als het Maxima Medisch Centrum, op slechts 5 minuten rijden. 
Binnen 10 minuten rijdt u op de A2 en A67 richting Antwerpen, Venlo, Maastricht en Utrecht/Amsterdam.

Gebouwd in 2019 en uitgerust met maar liefst 26 zonnepanelen, triple beglazing, warmtepomp en vloerverwarming én – koeling, is deze woning volledig toekomstbestendig.

INDELING:
BEGANE GROND:
Via de ruime oprit met plek voor meerdere auto’s bereik je de entree van de woning. In de royale hal bevinden zich de trapopgang naar de eerste verdieping, de hedendaagse toiletruimte, een stook-/technische ruimte met de opstelling van de warmtepomp en de meterkast.

Het leefgedeelte is riant opgezet en voelt dankzij de hoge plafonds en hoge deuren extra ruim en licht. Aan de voorzijde tref je de woonkamer met prachtig uitzicht over het bos. Aan de achterzijde bevindt zich de woonkeuken – een echte eyecatcher! De luxe keuken is op maat gerealiseerd door Van Diessen keukens en voorzien van een kookeiland, een kastenwand en hoogwaardige inbouwapparatuur zoals Bora inductie kookplaat, Quooker, wijnklimaatkast, combi oven/stoomoven en vaatwasser.

Via de keuken is er toegang tot de praktische bijkeuken met een pantry en aansluitingen voor wasmachine en droger. Tevens voldoende ruimte voor het bergen van spullen of het stallen van de fietsen. Vanuit de keuken openen dubbele deuren naar het overdekte terras, perfect voor lange zomeravonden.

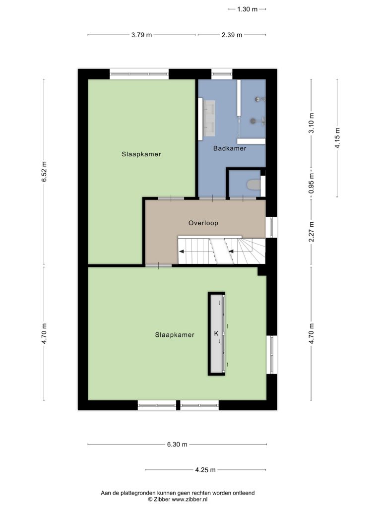
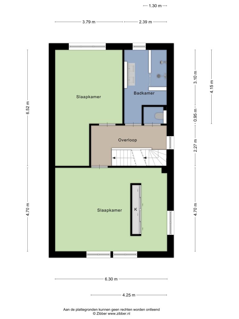
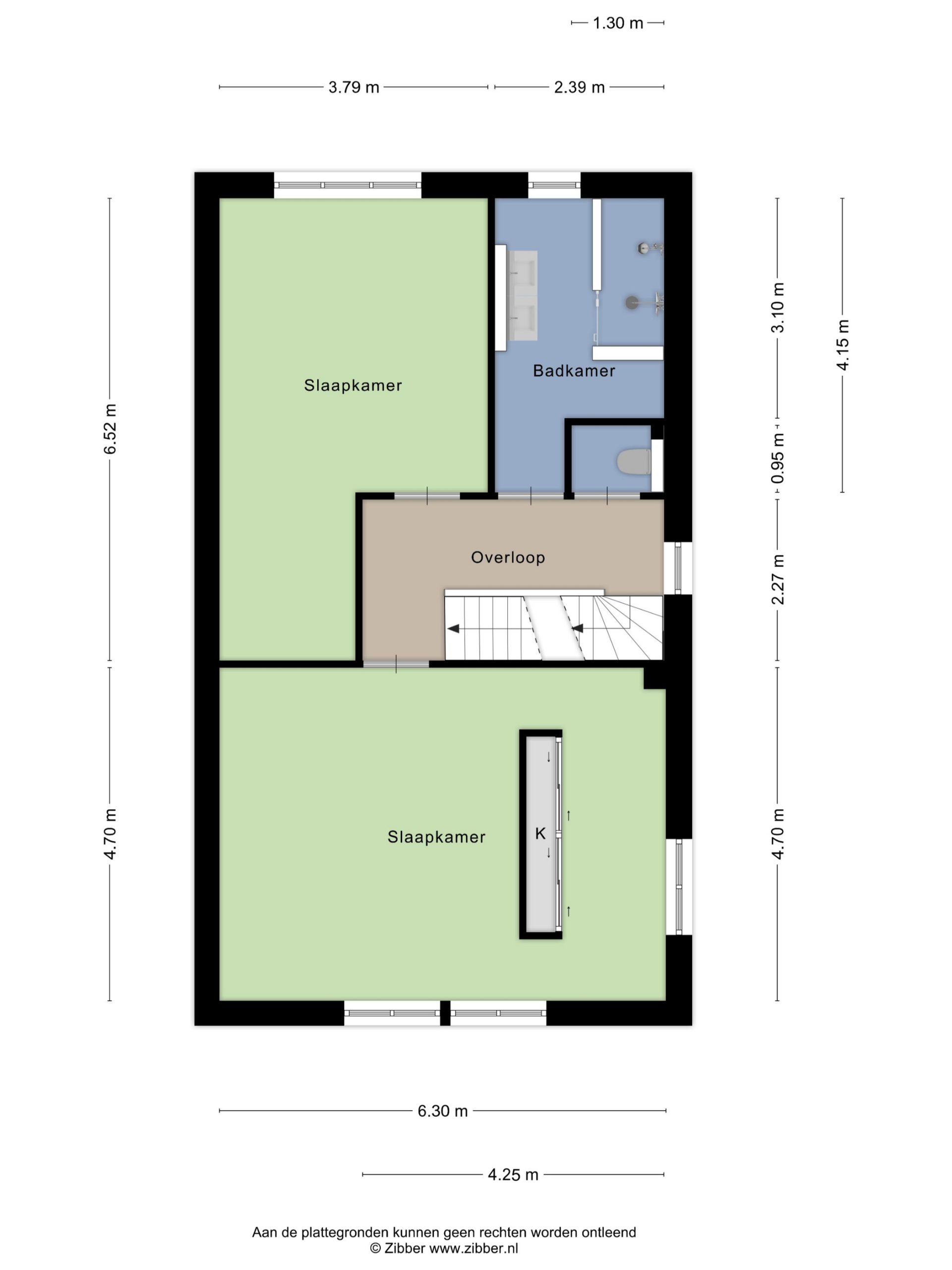
EERSTE VERDIEPING:
De ruime overloop biedt toegang tot alle vertrekken en de trapopgang naar de tweede verdieping. Aan de voorzijde vind je de ruime (hoofd)slaapkamer, oorspronkelijk ontworpen als twee kamers. Aan de achterzijde bevindt zich de tweede slaapkamer, eveneens royaal van formaat.

De badkamer is modern en ruim, met een inloopdouche, een fraai wastafelmeubel met dubbele waskommen en hedendaagse afwerking. Een separate toiletruimte is eveneens aanwezig. De ruimte op deze verdieping is zodanig dat het eenvoudig mogelijk is om een derde slaapkamer te realiseren.

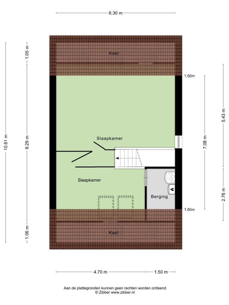
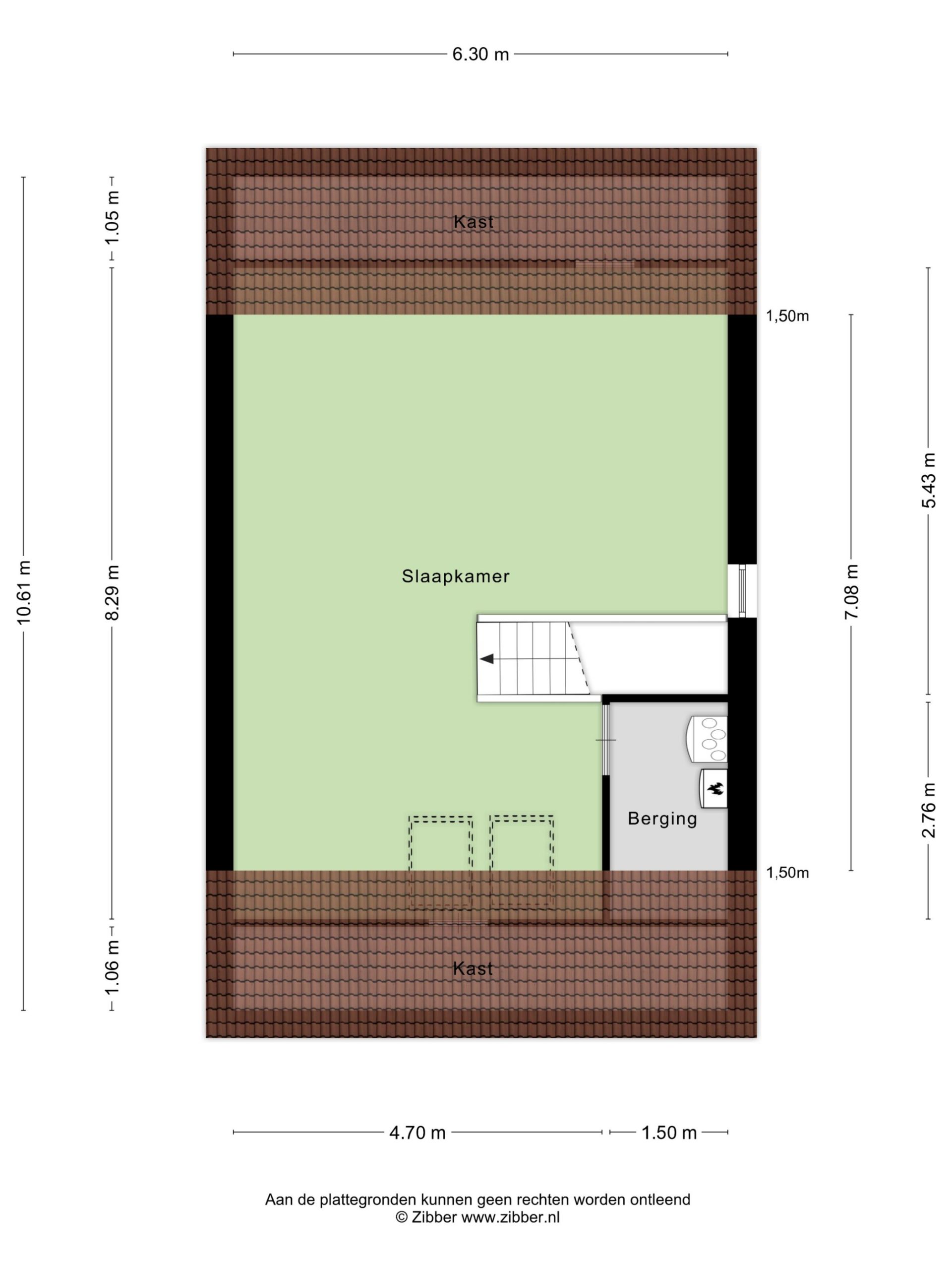
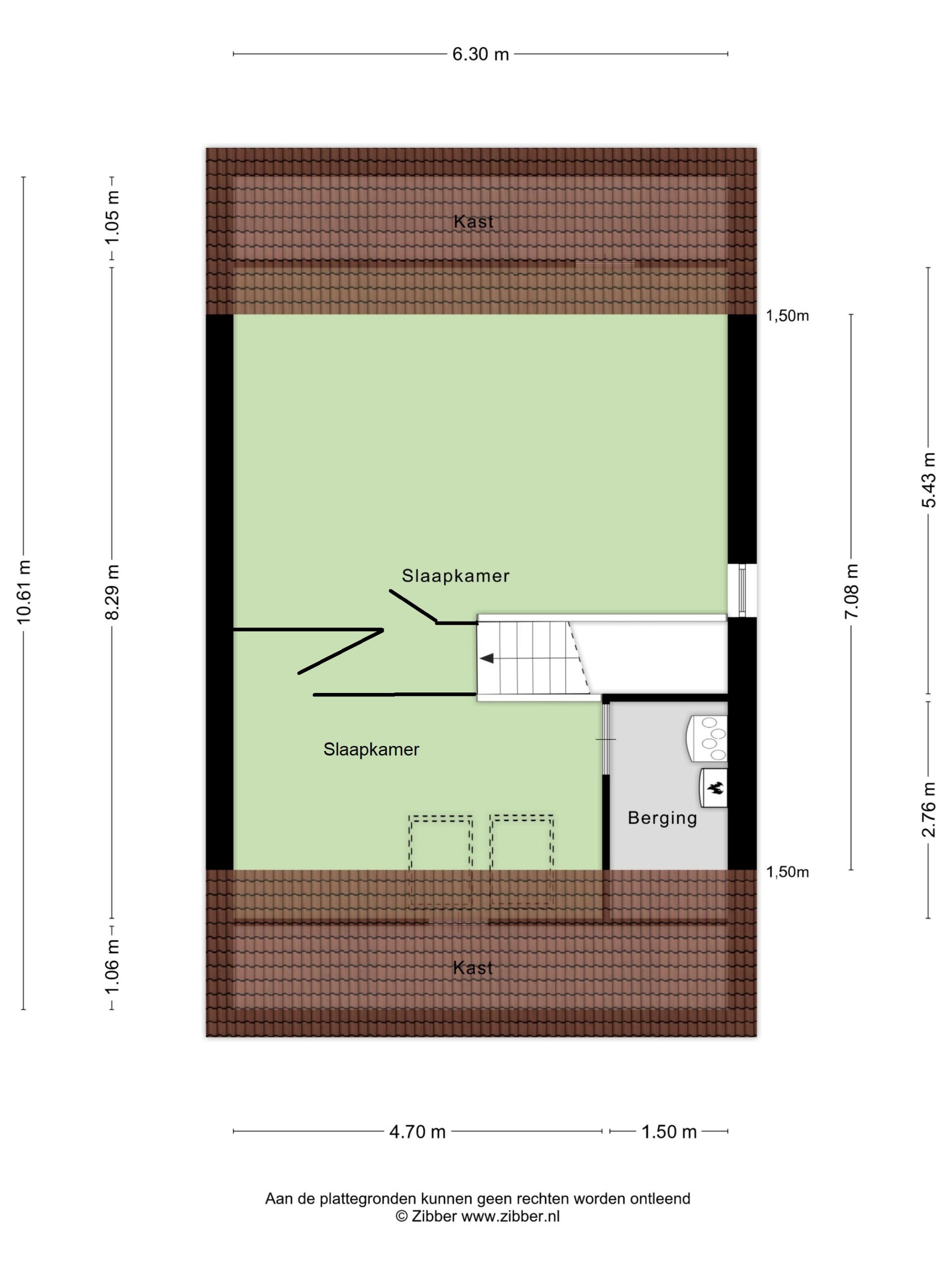
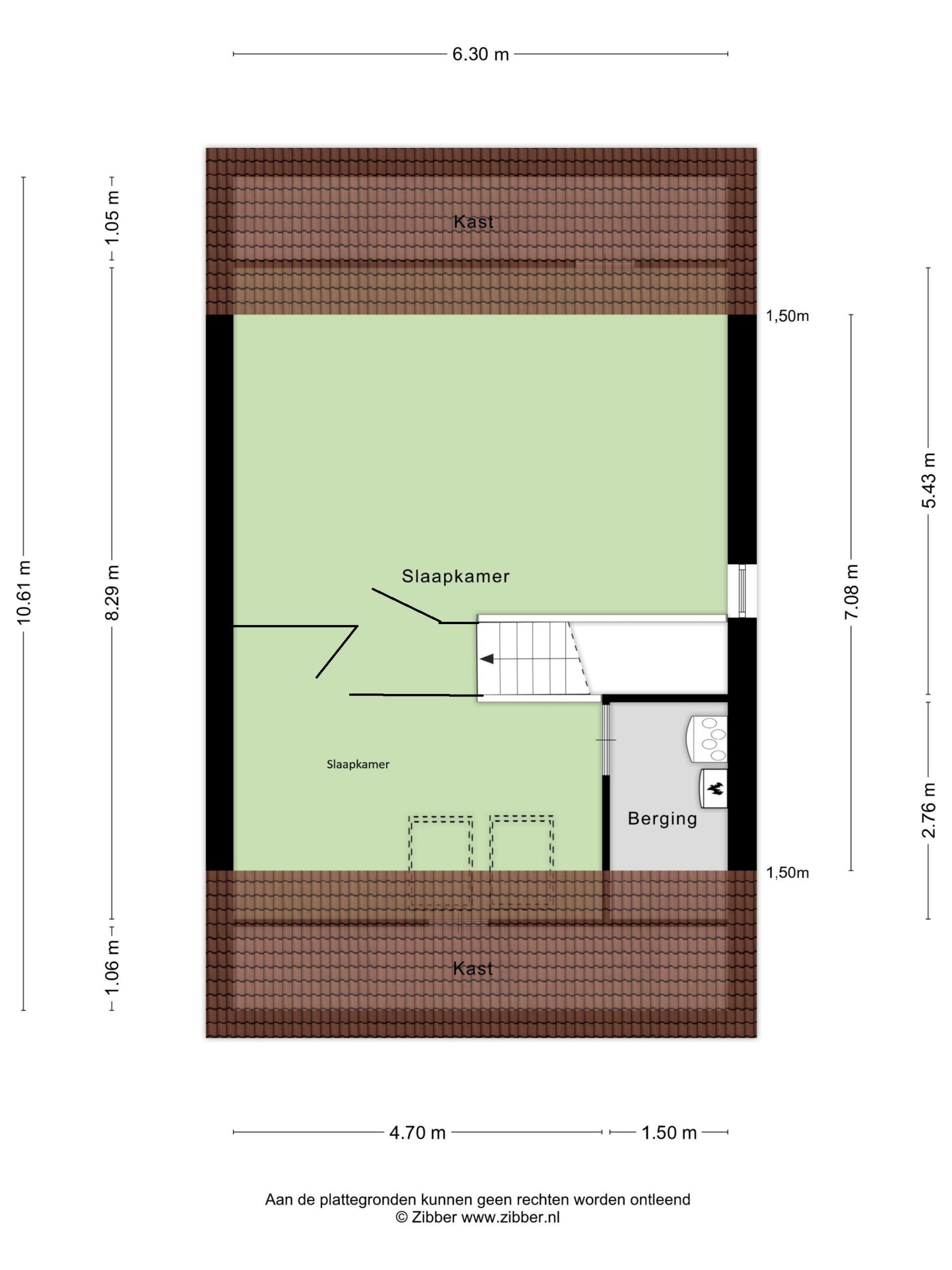
TWEEDE VERDIEPING
De zolderverdieping is indrukwekkend in omvang en biedt volop ruimte voor verdere indeling – denk aan een of twee extra slaapkamers, werkruimte of hobbykamer. Voor een juiste indruk zijn visuals/ impressies meegenomen in de presentatie. Twee dakramen aan de voorzijde zorgen voor natuurlijke lichtinval. Verder vind je hier een afgesloten technische ruimte met de WTW-installatie en veel bergruimte achter de knieschotten.

Alle verdiepingen zijn voorzien van een PVC vloer. De woning kenmerkt zich door hoge plafonds, hoge deuren en veel ramen. Hierdoor geeft het een ruimtelijk en fris gevoel.

TUIN:
De voortuin is strak en onderhoudsvriendelijk aangelegd, met een oprit voor meerdere voertuigen en een achterom. De achtertuin (gelegen op het zuidwesten) is sfeervol vormgegeven met een gazon, plantenborders en twee heerlijke terrassen. Eén van de terrassen is overdekt met een moderne aluminium overkapping, voorzien van zonwering aan zowel de bovenzijde als zijkant – ideaal voor ieder seizoen.

BIJZONDERHEDEN:
– Zeer riante en luxe half-vrijstaande woning gelegen in gewilde woonwijk Hoogh Waalre bij ‘Waterplas de Meeris’ in een kindvriendelijke woonomgeving op loopafstand van de bossen en dorpskern;
– Jonge woning gebouwd in 2019 welke volledig voldoet aan de huidige woonwensen. De woning is afgewerkt met hedendaagse materialen;
– Volledig geïsoleerde woning;
– Vloerverwarming met vloerkoeling als hoofdverwarming op alledrie de verdiepingen;
– 26 zonnepanelen;
– HR-triple beglazing m.u.v. twee dakramen;
– Energielabel A (niet opnieuw vastgesteld, herwaardering kan mogelijk een hoger label opleveren);
– Huidige elektra kosten bedragen € 32,- per maand (afhankelijk van leverancier);
– Zeer verzorgd aangelegde voor- en achtertuin (is achterom bereikbaar via de poort naast de woning);
– Royale oprit welke ruimte biedt voor het parkeren van meerdere auto’s;
– Ideaal gelegen t.o.v. grote bedrijven uit de regio zoals ASML, HTC en MMC. Uitvalswegen naar het nationale wegennet (A2 en A67) binnen enkele minuten bereikbaar. Het centrum van Eindhoven is goed bereikbaar met fiets, auto of openbaar vervoer.
Aanvaarding per direct!

Heeft u kinderen? Dan liggen diverse basisscholen op fietsafstand (De Meent, De Wilderen) en sportaccommodaties zijn er ook voldoende. De woning ligt aan het ‘Gat van Waalre’ met een sfeervolle wandelboulevard, deze gaat over in de bossen.

Voor een lekker hapje eten kunt u terecht bij Meester Keeman, De Oude Toren, restaurant Eden, het Stationskoffiehuis, restaurant Lugar of het sterrenrestaurant De Treeswijkhoeve.

BEZICHTIGING PLANNEN ?
Dit is een uniek aanbod in Waalre: een karaktervol herenhuis met veel ruimte, sfeer en comfort. Benieuwd naar de mogelijkheden? 
Plan snel een bezichtiging – wij laten je graag alle details ervaren. Bel ons op kantoor 040 – 223 09 16 of bel mobiel naar Jacqueline 06-51785520 of Erik 06-30399669  
 
TER INFORMATIE: 
Tot zekerheid voor de nakoming van de verplichtingen dient de koper, binnen 6 weken na de totstandkoming van de koopovereenkomst, een schriftelijke bankgarantie te doen stellen c.q. een waarborgsom te storten ter hoogte van 10% van de koopsom. Verkoper beroept zich ten allen tijde op het schriftelijkheidsvereiste bij de verkoop van zijn woning. Tevens is het bedrag voor een financieringsvoorbehoud wat in de koopovereenkomst opgenomen kan worden, niet hoger dan de vraagprijs van de woning. 
 
De Meetinstructie is gebaseerd op de NEN2580. De Meetinstructie is bedoeld om een meer eenduidige manier van meten toe te passen voor het geven van een indicatie van de gebruiksoppervlakte. De Meetinstructie sluit verschillen in meetuitkomsten niet volledig uit, door bijvoorbeeld interpretatieverschillen, afrondingen of beperkingen bij het uitvoeren van de meting. 
 
De brochure is samengesteld om je een indruk te geven van het object. De informatie die opgenomen is in deze brochure is afkomstig van de verkoper en/of derden. Hoewel wij bij het samenstellen van de brochure zorgvuldig te werk gaan, kunnen geen rechten worden ontleend aan onjuistheden etc. Deze informatie moet in combinatie met een bezichtiging van de woning worden beschouwd als een uitnodiging tot het doen van een bod of om in onderhandeling te treden. Deze informatie is door ons met de nodige zorgvuldigheid samengesteld. Onzerzijds wordt echter geen enkele aansprakelijkheid aanvaard voor enige onvolledigheid, onjuistheid of anderszins, dan wel de gevolgen daarvan. Alle opgegeven maten en oppervlakten zijn indicatief. Van toepassing zijn de NVM voorwaarden. 
 
Een mondelinge overeenstemming tussen een particuliere verkoper en een particuliere koper is niet rechtsgeldig. Met andere woorden: er is geen koop. Er is pas sprake van een rechtsgeldige koop als een particuliere verkoper en een particuliere koper een koopovereenkomst hebben ondertekend. Dit vloeit voort uit artikel 7:2 Burgerlijk Wetboek. Een bevestiging van de mondelinge overeenstemming per e-mail of een toegestuurd concept van de koopovereenkomst wordt niet gezien als een ‘ondertekende koopovereenkomst’. Wanneer er onderhandelingen worden aangegaan met een professionele partij en er wordt een mondelinge overeenstemming bereikt, wordt eveneens vastgehouden aan het schriftelijkheidsvereiste.

ENGLISH:
Agterste Meer 3 – Spacious, Stylish, Move-In Ready and Sustainable Living in Waalre!

In the beautiful, green neighbourhood of Hoogh Waalre stands this semi-detached home. Here you live in an atmospheric, move-in ready house that combines warmth, comfort, and space with a pleasant, low-maintenance garden, a veranda you can enjoy all year round, and a quiet location overlooking the *Gat van Waalre* and within walking distance of nature and local amenities.
This is not just a house to live in, but a place where you can truly feel at home.

TOP LOCATION IN WAALRE

The location is fantastic, with the forest and the *Gat van Waalre* (Meeris lake) right across from you. You can reach Eindhoven quickly, and the amenities of Waalre-Dorp and Aalst are within easy reach. High-tech companies such as ASML and the High Tech Campus, as well as the Maxima Medical Centre, are just a 5-minute drive away.
Within 10 minutes, you are on the A2 and A67 motorways towards Antwerp, Venlo, Maastricht and Utrecht/Amsterdam.

Built in 2019 and equipped with 26 solar panels, triple glazing, a heat pump, and underfloor heating and cooling, this home is fully future-proof.

GROUND FLOOR:

From the spacious driveway with room for several cars, you enter the house. The generous hallway includes the staircase to the first floor, the modern toilet, a heating/technical room with the heat-pump installation, and the meter cupboard.

The living area is generously designed and feels extra spacious and light thanks to the high ceilings and tall doors. At the front you will find the living room with beautiful views over the forest. At the rear is the living kitchen – a real eye-catcher!
The luxury kitchen was custom-made by Van Diessen Kitchens and features a cooking island, a full wall of cabinets and high-quality built-in appliances including a Bora induction hob, Quooker tap, wine climate cabinet, combination oven/steam oven and dishwasher.

The kitchen provides access to the practical utility room with pantry and connections for a washing machine and dryer. There is also sufficient space for storage or bicycles. From the kitchen, double doors open onto the covered terrace – perfect for long summer evenings.

FIRST FLOOR:

The spacious landing provides access to all rooms and the staircase to the second floor. At the front is the large (main) bedroom, originally designed as two rooms. At the rear is the second bedroom, also generous in size.

The bathroom is modern and spacious, with a walk-in shower, a stylish vanity with double basins and contemporary finishing. A separate toilet is also present. The space on this floor allows for the easy creation of a third bedroom.

SECOND FLOOR:

The attic floor is impressive in size and offers plenty of options for further layout – for example, one or two additional bedrooms, a workspace or hobby room. Visual impressions are included in the presentation. Two skylights at the front provide natural daylight.
You will also find a separate technical room with the mechanical ventilation (WTW) installation and ample storage space behind the knee walls.

All floors are fitted with PVC flooring. The house is characterised by high ceilings, tall doors and many windows, creating a spatial and fresh feel.

GARDEN:
The front garden is sleek and low-maintenance, with a driveway for multiple vehicles and a side entrance to the back garden.
The southwest-facing rear garden is attractively designed with a lawn, planting borders and two lovely terraces. One of the terraces is covered with a modern aluminium roof, equipped with sun shading on both the top and the sides – ideal for every season.

SPECIAL FEATURES:
* Very spacious and luxurious semi-detached house located in the desirable neighbourhood Hoogh Waalre near Waterplas De Meeris, in a child-friendly environment within walking distance of the forest and village centre
* Modern home built in 2019, fully meeting today’s housing wishes, finished with contemporary materials
* Fully insulated
* Underfloor heating with cooling on all three floors
* 26 solar panels
* HR triple glazing (except two skylights)
* Energy label A (not reassessed; revaluation may result in a higher label)
* Current electricity costs: approx. €32 per month (depending on energy provider)
* Beautifully landscaped front and rear gardens (rear accessible via gate next to the house)
* Spacious driveway offering room for multiple cars
* Ideally located near major companies such as ASML, HTC and MMC; motorways A2 and A67 reachable within minutes. Eindhoven city centre easily accessible by bike, car or public transport

If you have children, several primary schools (De Meent, De Wilderen) are within cycling distance, and sports facilities are plentiful. The house is situated at *het Gat van Waalre* with a charming walking boulevard that continues into the forest.

For dining, you can visit Meester Keeman, De Oude Toren, Restaurant Eden, Stationskoffiehuis, Brasserie Hoom, Restaurant Lugar, or the Michelin-starred De Treeswijkhoeve.

WANT TO SCHEDULE A VIEWING?
This is a unique opportunity in Waalre: a characterful townhouse with plenty of space, atmosphere, and comfort. Curious to see more?
Schedule a viewing – we would be happy to show you all the details. Call our office at 040 – 223 09 16 or call Jacqueline (06-51785520) or Erik (06-30399669).

ADDITIONAL INFORMATION:

As security for fulfilling the obligations, the buyer must, within 6 weeks after signing the purchase agreement, provide a written bank guarantee or deposit a down payment amounting to 10% of the purchase price. The seller insists on the written-form requirement for the sale of this property. The financing contingency that can be included in the purchase agreement may not exceed the asking price of the home.

The measurement instruction is based on NEN2580. It is intended to apply a uniform method of measurement for determining usable floor area. Differences due to interpretation, rounding or practical measurement limitations cannot be fully excluded.

This brochure has been compiled to give you an impression of the property. The information provided comes from the seller and/or third parties. Although we prepare the brochure with care, no rights may be derived from inaccuracies, etc. This information, together with a viewing of the property, should be regarded as an invitation to make an offer or enter negotiations. The information has been compiled with the necessary care, but we accept no liability for any incompleteness, inaccuracies or consequences thereof. All dimensions and surfaces are indicative. NVM conditions apply.

Kenmerken

Koopprijs
€ 889.000,- k.k.
Status
Verkocht onder voorbehoud
Aanvaarding
Direct

Bouw

Bouwjaar
2019
Bouwvorm
Bestaande bouw
Soort
Eengezinswoning
Dak type
Zadeldak
Soorten
Geen garage

Oppervlakten

Perceel oppervlakte
303 m2
Woonoppervlakte
204 m2

Indeling

Aantal kamers
6
Aantal slaapkamers
3
Aantal badkamers
1

Energie

Energieklasse
A

Plattegronden

Contact

Geïnteresseerd in deze woning?

Coppelmans Makelaardij

Elzentlaan 27

5611 LG Eindhoven

Contact Neem contact op