5551 AJ, Valkenswaard

Valkenswaard – Irislaan 32

€ 425.000,- k.k.

Bouwjaar
1972

Perceeloppervlakte
153 m2

Aantal kamers
6

Beschrijving

*English Below*

Ben je op zoek naar dé ideale gezinswoning met maar liefst 5 slaapkamers in een kindvriendelijke ligging in Oud-Dommelen (Valkenswaard)?

Deze zeer ruime en goed onderhouden tussenwoning is netjes afgewerkt en beschikt over een sfeervolle woonkamer met openhaard, moderne keuken, bijkeuken, maar liefst 5 slaapkamers en keurig aangelegde, privacybiedende tuin met berging.
De woning is gelegen aan een rustige woonstraat, op korte afstand van winkelcentrum “de Belleman”, basisscholen, natuurgebied, sportaccommodaties en uitvalswegen naar Eindhoven en België.

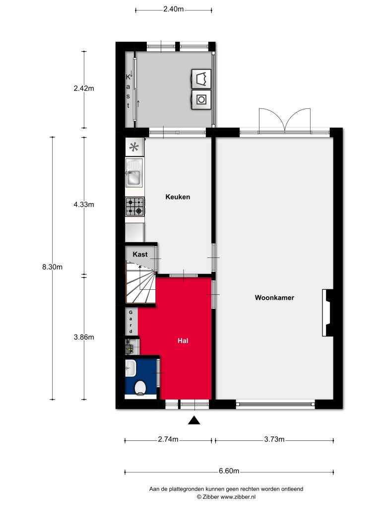
INDELING:
BEGANE GROND:
Entree.

Ruime hal met tegelvloer, wanden spachtelputz en plafond stucwerk. Voorzien van garderoberuimte en meterkast (10 groepen en aardlekschakelaar).

Geheel betegelde toiletruimte voorzien van een fonteintje en hangend closet.

Sfeervolle, ruime woonkamer met grote raampartijen die zorgen voor veel lichtinval. De woonkamer is voorzien
van een eiken houten vloer, wanden en plafond stucwerk (vernieuwd in 2017). Verder voorzien van een openhaard,
2 nieuwe designradiatoren (2017) en openslaande tuindeuren naar het terras.

Dichte keuken voorzien van een moderne kunststof keukeninrichting met een kunststof aanrechtblad, 1,5 RVS spoelbak, koelkast, 4-pits inductieplaat (2023), RVS schouwafzuigkap, combimagnetron ( 2023), vaatwasser (2023) en extra keukenblok. Vanuit de keuken toegang tot kelderkast.

Praktische, aangebouwde deels betegelde bijkeuken voorzien van aanrechtblad, vaste kastenwand en deur naar
de tuin. De aansluiting voor de wasapparatuur bevindt zich tevens in de bijkeuken.

EERSTE VERDIEPING:
Overloop bereikbaar middels een dichte trap. Op de eerste verdieping zijn vanuit de overloop aansluitend de
4 slaapkamers en de badkamer bereikbaar.

Ruime slaapkamer 1 gelegen aan de achterzijde van de woning, voorzien van een PVC vloer in visgraatmotief, wanden en plafond stucwerk.

Ruime slaapkamer 2 gelegen aan de voorzijde van de woning, voorzien van een PVC vloer in visgraatmotief, wanden en plafond stucwerk.

Slaapkamer 3 gelegen aan de achterzijde van de woning, voorzien van een PVC vloer in visgraatmotief, wanden en plafond stucwerk.

Slaapkamer 4 gelegen aan de voorzijde van de woning, voorzien van een PVC vloer in visgraatmotief, wanden en plafond stucwerk.

Geheel, licht betegelde badkamer voorzien van een hoekbad met douche, scherm en thermostaatkraan,
wastafel in meubel, badkamerkast en hangend closet.

TWEEDE VERDIEPING:
Overloop bereikbaar middels een open trap. Voorzien van opstelling CV-installatie (Intergas) vernieuwd in 2018; en aansluiting voor de wasapparatuur. De zolder is geheel geïsoleerd in 2018.

Zolderkamer/slaapkamer 5 gelegen aan de achterzijde van de woning, voorzien van houten planken vloer, een grote dakkapel en bergruimte in dakschuinte met schuifdeuren.

BUITEN:
Keurig aangelegde voortuin voorzien van een buitenkraan.

Keurig aangelegde, veel privacy biedende achtertuin. De tuin is voorzien van een terras verhard met betontegels,
2e terras verhard met grind, buitenkraan, tuinverlichting, stopcontacten, gemetselde schuttingen en houten poort naar achterpad.

Vrijstaande stenen berging voorzien van elektra.

ALGEMEEN:
– Geheel vernieuwd dak inclusief schoorsteen gevoegd in 2025;
– Dak berging vernieuwd in 2024;
– Slaapkamer raam vernieuwd en voorzien van HR++ in 2025;
– Perceeloppervlakte ca. 153 m².
– Woonoppervlakte ca. 133 m².
– Externe bergruimte ca. 5 m².
– Inhoud ca. 460 m3.
– Ruime, nette tussenwoning gelegen in rustige woonomgeving.
– De woning is geheel voorzien van dubbele beglazing.
– Moderne afwerking in lichte kleurstellingen.
– Ideale ligging voor jonge gezinnen.
– Gunstige ligging in Oud-Dommelen, grenzend aan de nieuwe wijk Lage-Heide, op korte afstand van winkelcentrum De Belleman, basisschool op loopafstand, sportaccommodaties en speeltuintjes.
– Bouwjaar 1972.
– Aanvaarding in overleg, op korte termijn mogelijk.
BEZICHTIGING PLANNEN
Wilt u meer weten over deze prachtige woning of een bezichtiging plannen? Bel ons op kantoor 040 – 223 09 16 of bel mobiel naar Jacqueline 06-51785520 of Erik 06-30399669

TER INFORMATIE:
Tot zekerheid voor de nakoming van de verplichtingen dient de koper, binnen 6 weken na de totstandkoming van de koopovereenkomst, een schriftelijke bankgarantie te doen stellen c.q. een waarborgsom te storten ter hoogte van 10% van de koopsom. Verkoper beroept zich ten allen tijde op het schriftelijkheidsvereiste bij de verkoop van zijn woning. Tevens is het bedrag voor een financieringsvoorbehoud wat in de koopovereenkomst opgenomen kan worden, niet hoger dan de vraagprijs van de woning.

De Meetinstructie is gebaseerd op de NEN2580. De Meetinstructie is bedoeld om een meer eenduidige manier van meten toe te passen voor het geven van een indicatie van de gebruiksoppervlakte. De Meetinstructie sluit verschillen in meetuitkomsten niet volledig uit, door bijvoorbeeld interpretatieverschillen, afrondingen of beperkingen bij het uitvoeren van de meting.

De brochure is samengesteld om je een indruk te geven van het object. De informatie die opgenomen is in deze brochure is afkomstig van de verkoper en/of derden. Hoewel wij bij het samenstellen van de brochure zorgvuldig te werk gaan, kunnen geen rechten worden ontleend aan onjuistheden etc. Deze informatie moet in combinatie met een bezichtiging van de woning worden beschouwd als een uitnodiging tot het doen van een bod of om in onderhandeling te treden. Deze informatie is door ons met de nodige zorgvuldigheid samengesteld. Onzerzijds wordt echter geen enkele aansprakelijkheid aanvaard voor enige onvolledigheid, onjuistheid of anderszins, dan wel de gevolgen daarvan. Alle opgegeven maten en oppervlakten zijn indicatief. Van toepassing zijn de NVM voorwaarden.

Een mondelinge overeenstemming tussen een particuliere verkoper en een particuliere koper is niet rechtsgeldig. Met andere woorden: er is geen koop. Er is pas sprake van een rechtsgeldige koop als een particuliere verkoper en een particuliere koper een koopovereenkomst hebben ondertekend. Dit vloeit voort uit artikel 7:2 Burgerlijk Wetboek. Een bevestiging van de mondelinge overeenstemming per e-mail of een toegestuurd concept van de koopovereenkomst wordt niet gezien als een ‘ondertekende koopovereenkomst’. Wanneer er onderhandelingen worden aangegaan met een professionele partij en er wordt een mondelinge overeenstemming bereikt, wordt eveneens vastgehouden aan het schriftelijkheidsvereiste.

Are you looking for the ideal family home with no fewer than 5 bedrooms in a child-friendly location in Oud-Dommelen (Valkenswaard)?
This very spacious and well-maintained terraced house is neatly finished and features a charming living room with a fireplace, a modern kitchen, a utility room, no fewer than 5 bedrooms, and a neatly landscaped, private garden with a shed.
The house is located on a quiet residential street, a short distance from the “De Belleman” shopping center, primary schools, a nature reserve, sports facilities, and major roads to Eindhoven and Belgium.

LAYOUT:
GROUND FLOOR:
Entrance.

Spacious hall with tiled floor, plastered walls, and plastered ceiling. There is a wardrobe space and the meter cupboard (10 circuits and a residual current device).

Fully tiled toilet with a small sink and wall-hung toilet.

Charming, spacious living room with large windows that provide plenty of natural light. The living room features
an oak floor, plastered walls and ceiling (renewed in 2017). It also includes a fireplace,
two new designer radiators (2017), and French doors leading to the terrace.

The closed kitchen is equipped with a modern synthetic kitchen unit, including a synthetic countertop, a 1.5-inch stainless steel sink, refrigerator, 4-burner induction hob (2023), stainless steel extractor hood, combination microwave (2023), dishwasher (2023), and an additional kitchen unit. The kitchen provides access to a basement storage cupboard.

A practical, partially tiled attached utility room features a countertop, built-in cupboards, and a door to the garden. The plumbing for laundry appliances is also located in the utility room.

FIRST FLOOR:
The landing is accessible via a closed staircase. The four bedrooms and the bathroom on the first floor are accessible from the landing.

Spacious bedroom 1, located at the rear of the house, features a herringbone PVC floor, plastered walls, and ceiling.

Spacious bedroom 2, located at the front of the house, features a herringbone PVC floor, plastered walls, and ceiling.

Bedroom 3, located at the rear of the house, features a herringbone PVC floor, plastered walls, and ceiling.

Bedroom 4, located at the front of the house, features a herringbone PVC floor, plastered walls, and ceiling.

Fully tiled, brightly tiled bathroom with a corner bath with shower, screen, and thermostatic tap,
a vanity unit, a bathroom cabinet, and a wall-hung toilet.

SECOND FLOOR:
Landing accessible via an open staircase. The layout was renewed in 2018 and the plumbing for laundry appliances. The attic was fully insulated in 2018.

Attic room/bedroom 5 is located at the rear of the house and features wooden flooring, a large dormer window, and storage space in the sloping roof with sliding doors.

OUTSIDE:
Neatly landscaped front garden with an outdoor tap.

Neatly landscaped, private back garden. The garden features a paved patio with concrete slabs, a second paved patio with gravel, an outdoor tap, garden lighting, electrical outlets, brick fencing, and a wooden gate to the rear path.

Detached stone shed with electricity.

GENERAL:
– Completely renovated roof, including chimney repointing, in 2025;
– Shed roof replaced in 2024;
– Bedroom window replaced and fitted with HR++ heating in 2025;
– Plot area approx. 153 m².
– Living area approx. 133 m². – External storage space approx. 5 m².
– Volume approx. 460 m³.
– Spacious, neat terraced house located in a quiet residential area.
– The house is fully double-glazed.
– Modern finishes in light colors.
– Ideal location for young families.
– Conveniently located in Oud-Dommelen, adjacent to the new Lage-Heide neighborhood, a short distance from the De Belleman shopping center, a primary school within walking distance, sports facilities, and playgrounds.
– Built in 1972.
– Acceptance by agreement, possible at short notice.

SCHEDULE A VIEWING
Would you like to know more about this beautiful house or schedule a viewing? Call our office at 040 – 223 09 16 or call Jacqueline on 06-51785520 or Erik on 06-30399669.

FOR INFORMATION:
To secure the fulfillment of the obligations, the buyer must provide a written bank guarantee or deposit 10% of the purchase price within six weeks of the purchase agreement’s conclusion. The seller always invokes the written requirement when selling their property. Furthermore, the amount for a financing contingency that can be included in the purchase agreement may not exceed the asking price of the property.

These Measurement Instructions are based on NEN2580. They are intended to provide a more consistent measurement method for providing an indication of the usable floor area. The Measurement Instructions do not completely eliminate differences in measurement results, for example, due to differences in interpretation, rounding, or limitations in performing the measurement.

Kenmerken

Koopprijs
€ 425.000,- k.k.
Status
Verkocht
Aanvaarding
Direct

Bouw

Bouwjaar
1972
Bouwvorm
Bestaande bouw
Soort
Eengezinswoning
Dak type
Zadeldak
Soorten
Geen garage

Oppervlakten

Perceel oppervlakte
153 m2
Woonoppervlakte
140 m2

Indeling

Aantal kamers
6
Aantal slaapkamers
5
Aantal badkamers
1

Energie

Energieklasse
C

Contact

Geïnteresseerd in deze woning?

Coppelmans Makelaardij

Elzentlaan 27

5611 LG Eindhoven

Contact Neem contact op