5614 CJ, Eindhoven

Eindhoven – St Hubertusstraat 30

€ 389.000,- k.k.

Bouwjaar
1955

Aantal kamers
5

Beschrijving

*ENGLISH SEE BELOW*

Sfeervol wonen in één van de leukste buurten van Eindhoven! Het tuindorp ligt binnen de stadsring en kenmerkt zich door karakteristieke jaren ’50 woningen in een groene omgeving. Je woont hier rustig maar toch binnen 5 minuten fietsen van de binnenstad en de natuur. Deze ruime maisonnette heeft onder meer drie slaapkamers en een balkon aan de achterzijde. Verder is er een bergzolder én een eigen fietsenberging.

INDELING:

BEGANE GROND:
Entree. Hal met meterkast en trapopgang. Aan de achterzijde is via een pad de eigen berging bereikbaar.

1e VERDIEPING:
Overloop. Woonkamer in L-vorm met twee inbouwkasten en laminaatvloer. Separate keuken met moderne keukeninrichting voorzien van onder meer vaatwasser, 1 ½ spoelbak, gaskookplaat, afzuigkap, oven en diverse laden en boven- en onderkasten. Via een deur toegang naar het balkon gelegen op het zonnige Zuid-Westen.

2e VERDIEPING:
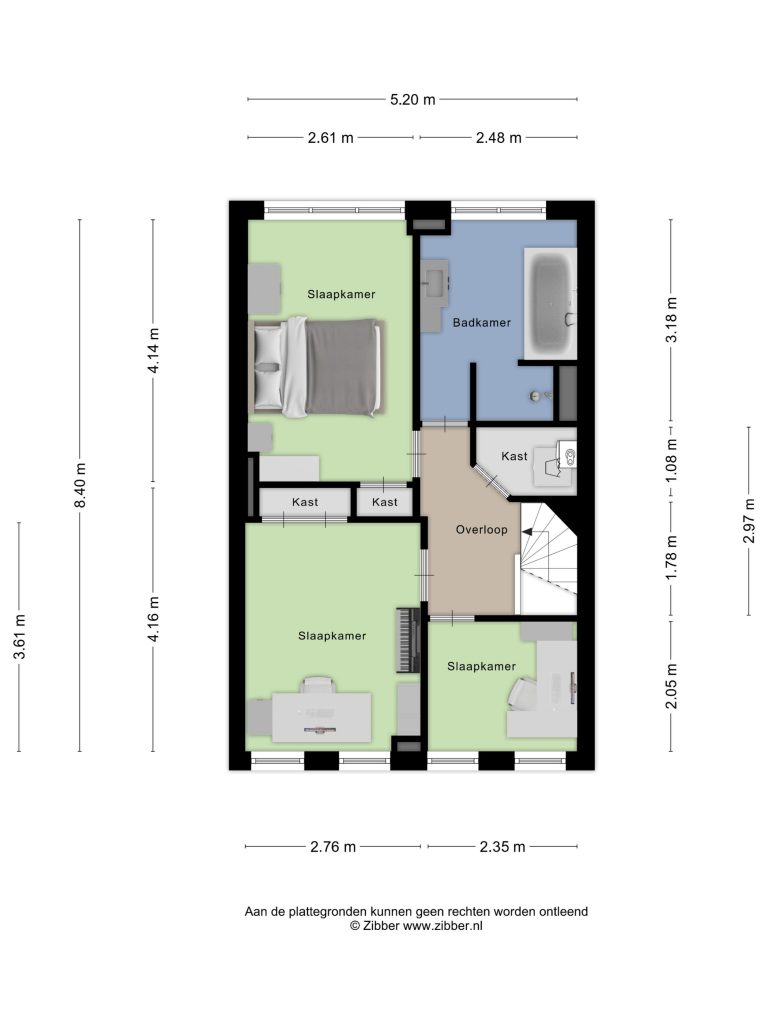
Overloop met badkamer met ligbad, inloopdouche en wastafel. Praktische bergruimte met aansluiting ten behoeve voor de wasmachine, droger en cv-combiketel (HR 2012).

Drie slaapkamers, alle voorzien van een nette laminaatvloer en twee slaapkamer zijn voorzien van een inbouwkast. Via een slaapkamer met inbouwkast is met een losse trap een ruime vlieringzolder te bereiken.

BERGING:
Achter de woning is een vrijstaande berging aanwezig voor het opslaan van spullen en fietsen.

Bijzonderheden
– Het appartement is volledig voorzien van isolerende beglazing;
– Diverse paneeldeuren zijn nog aanwezig;
– Rustige ligging grenzend aan gewilde woonwijk Witte dorp;
– Woonoppervlakte circa 89 m2.
– Inhoud circa 293 m3.
– Aanvaarding is per direct mogelijk.
– Getoonde foto’s zijn niet van het huidige interieur.

TER INFORMATIE:
Deze informatie is met veel zorg samengesteld, maar omdat wij voor de inhoud ervan in belangrijke mate afhankelijk zijn van de informatie van derden, moet deze als indicatief worden beschouwd en kunnen hieraan derhalve geen rechten worden ontleend.

Deze afmetingen van deze woning zijn door een extern bouwkundig bureau volgens de NEN 2580 norm berekend. Ondanks dat de berekening met de grootste zorgvuldigheid is uitgevoerd kunnen wij hieromtrent geen enkele vorm van aansprakelijkheid aanvaarden.

Tenzij anders is overeengekomen wordt in de koopakte een bepaling opgenomen waardoor de koper, tot zekerheid voor de nakoming van zijn verplichtingen, gehouden is binnen een bepaalde periode een bankgarantie te doen stellen dan wel een waarborgsom bij de notaris te storten ter grootte van 10% van de koopsom.

Rechtsgeldige koopovereenkomst pas ná ondertekening.
Een mondelinge overeenstemming tussen de particuliere verkoper en de particuliere koper is niet rechtsgeldig. Met andere woorden: er is geen koop. Er is pas sprake van een rechtsgeldige koop als de particuliere verkoper en de particuliere koper de koopovereenkomst hebben ondertekend. Dit vloeit voort uit artikel 7:2 Burgerlijk Wetboek. Een bevestiging van de mondelinge overeenstemming per e-mail of een toegestuurd concept van de koopovereenkomst wordt overigens niet gezien als een ‘ondertekende koopovereenkomst

Charming living in one of Eindhoven’s nicest neighborhoods! This garden village is located within the city ring and features characteristic 1950s houses in a green setting. You’ll live here in peace, yet within a 5-minute bike ride of the city center and nature. This spacious maisonette includes three bedrooms and a balcony at the rear. There is also an attic storage room and a private bicycle shed.

LAYOUT:

GROUND FLOOR:

Entrance hall with meter cupboard and staircase. A path leads to the private storage room at the rear.

FIRST FLOOR:

Landing. L-shaped living room with two built-in wardrobes and laminate flooring. Separate kitchen with modern appliances including a dishwasher, 1 1/2 sink, gas cooktop, extractor hood, oven, and various drawers, as well as upper and lower cabinets. A door leads to the balcony facing the sunny southwest.

SECOND FLOOR:
Landing with bathroom featuring a bathtub, walk-in shower, and sink. Practical storage space with connections for a washing machine, dryer, and central heating boiler (HR 2012).

Three bedrooms, all with neat laminate flooring, and two bedrooms with built-in wardrobes. A spacious attic is accessible via a separate staircase from one bedroom with a built-in wardrobe.

STORAGE:
At the rear of the house is a detached storage shed for storing belongings and bicycles.

Special features:
– The apartment is fully equipped with double glazing;
– Various panel doors are still present;
– Quiet location bordering the popular Witte Dorp neighborhood;
– Living area approximately 89 m².
– Volume approximately 293 m³.
– Immediate availability.
– Photos shown do not depict the current interior.

FOR INFORMATION:
This information has been compiled with great care, but because we rely significantly on third-party information for its content, it should be considered indicative and therefore no rights can be derived from it.

These dimensions of this property were calculated by an external construction firm in accordance with the NEN 2580 standard. Although the calculation was carried out with the utmost care, we cannot accept any liability in this regard.

Unless otherwise agreed, a provision will be included in the purchase agreement obliging the buyer, as security for the fulfillment of their obligations, to provide a bank guarantee within a certain period or to deposit a deposit with the notary equal to 10% of the purchase price.

A legally valid purchase agreement only becomes effective after signature.
A verbal agreement between the private seller and the private buyer is not legally valid. In other words: there is no purchase. A legally valid purchase only occurs once the private seller and the private buyer have signed the purchase agreement. This follows from Article 7:2 of the Dutch Civil Code. A confirmation of the verbal agreement by email or a sent draft of the purchase agreement is not considered a “signed purchase agreement.”

Kenmerken

Koopprijs
€ 389.000,- k.k.
Status
Verkocht
Aanvaarding
Direct

Bouw

Bouwjaar
1955
Bouwvorm
Bestaande bouw
Soort
Bovenwoning
Dak type
Zadeldak
Soorten
Geen garage

Oppervlakten

Woonoppervlakte
89 m2

Indeling

Aantal kamers
5
Aantal slaapkamers
3
Aantal badkamers
1

Energie

Energieklasse
C

1

1

Plattegronden

Contact

Geïnteresseerd in deze woning?

Coppelmans Makelaardij

Elzentlaan 27

5611 LG Eindhoven

Contact Neem contact op